Campobasso - Termoli
Greenfield
Informazioni in evidenza
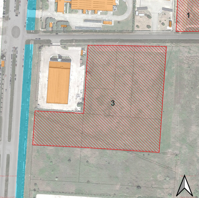
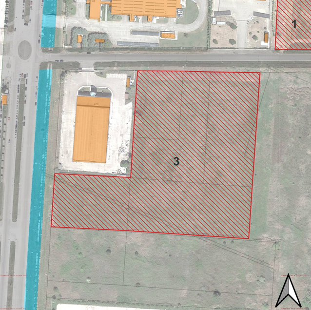
30.180 mqArea totale
33,00 %Indice di copertura massimo
30 mAltezza massima consentita
Posizione geografica
| Regione | Molise |
|---|---|
| Provincia | Campobasso |
| Comune | Termoli |
Posizione Molise
Caratteristiche del sito
| Denominazione area industriale | Consorzio per lo Sviluppo Industriale della Valle del Biferno |
|---|---|
| Area totale | 30.180 mq |
| Indice di copertura massimo | 33,00 % |
| Altezza massima consentita | 30,00 m |
| Modalità acquisizione | Acquisto |
| Area in Zona Economica Speciale | Si |
| Area in Zona Logistica Semplificata | No |
| Area in Zona Franca Doganale | No |
| Area di crisi industriale | Si |
Infrastrutture e connessioni
| Distanza dalla più vicina autostrada | 4,00 km |
|---|---|
| Distanza dalla più vicina stazione ferroviaria passeggeri | 8,00 km |
| Distanza dal più vicino porto industriale/commerciale | 8,00 km |
| Distanza dal più vicino aeroporto | 100,00 km |
| Distanza dal più vicino terminal ferroviario merci | 3,00 km |


