Varese - Busto Arsizio
Greenfield
Informazioni in evidenza
8.036 mqArea totale
60,00 %Indice di copertura massimo
18 mAltezza massima consentita
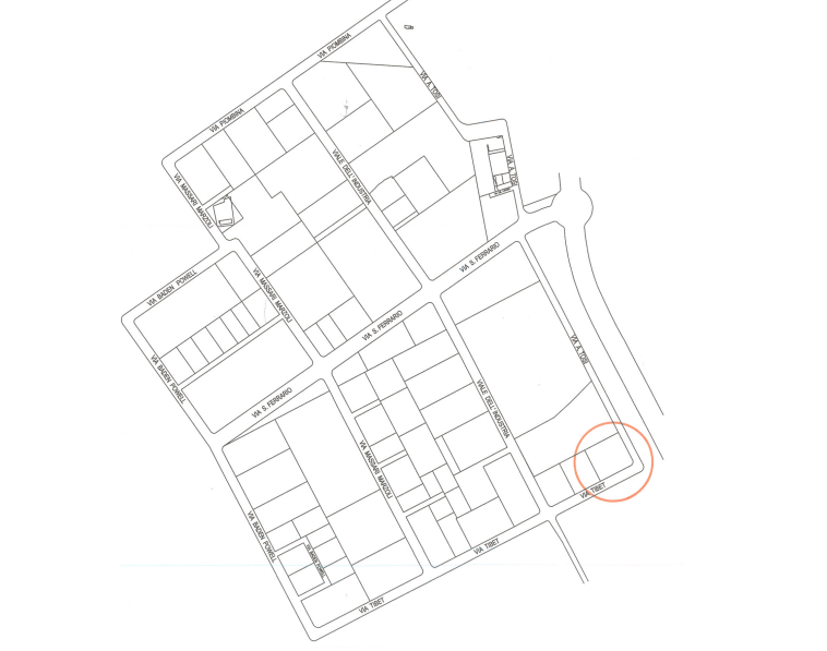
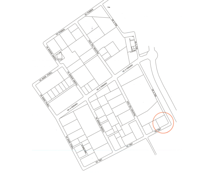
Posizione geografica
| Regione | Lombardia |
|---|---|
| Provincia | Varese |
| Comune | Busto Arsizio |
Posizione Lombardia
Caratteristiche del sito
| Denominazione area industriale | Piano Insediamenti Produttivi - Zona Industriale di Sud Ovest Sacconago |
|---|---|
| Area totale | 8.036 mq |
| Indice di copertura massimo | 60,00 % |
| Altezza massima consentita | 18,00 m |
| Modalità acquisizione | Acquisto |
| Area in Zona Economica Speciale | No |
| Area in Zona Logistica Semplificata | No |
| Area in Zona Franca Doganale | No |
| Area di crisi industriale | No |
Infrastrutture e connessioni
| Distanza dalla più vicina autostrada | 9,00 km |
|---|---|
| Distanza dalla più vicina stazione ferroviaria passeggeri | 5,00 km |
| Distanza dal più vicino porto industriale/commerciale | 175,00 km |
| Distanza dal più vicino aeroporto | 16,00 km |
| Distanza dal più vicino terminal ferroviario merci | 0,10 km |


